北浜テナント
| 所在地 | 山口県柳井市北浜6-20 |
|---|---|
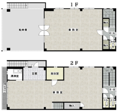
| 部 屋 | 1、2階 |
| 面 積 | 77.14㎡(23.3坪) 116.37㎡(35.2坪) |
| 種 別 | 事務所 |
| 構 造 | 鉄骨造 |
| 階建て | 3階建て |
| 築年月 | 1999年8月 |
| 賃 料 | 150,000円 |
| 共益費 | なし |
| 駐車場 | 有り |
| 敷 金 | 相談 |
| 礼 金 | なし |
| 火災保険 | 加入要 |
| 仲介手数料 | 150,000円 |
| 更新事務手数料 | 11,000円 |
| 入居時期 | 即入居可 |
| 取引態様 | 仲介 |
| 設 備 |
|---|
| ・電気 ・上水道 ・トイレ ・湯沸室 ※掲載内容と現況が異なる場合には、現況を優先させていただきます。 |
| 備 考 |
|---|
| 旧国道にも近くアクセスも良好です。1,2階が空きとなっております。 別にお貸しすることも可能です。 (1階のみ:70,000円) ・保証会社加入要 初回保証料:150,000円 保証料:10,000円(1年ごと)条件により不要 連帯保証人:原則不要 |

