柳井市伊陸(戸建)
| 所在地 | 山口県柳井市伊陸6959-3 |
|---|---|
| 価 格 | 399万円 |
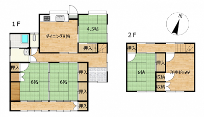
| 間取り | 5DK |
| 土地面積 | 305.11㎡(92.29坪) |
| 建物面積 | 108.74㎡(32.89坪) |
| 築年月 | 昭和49年10月 |
| 構 造 | 木造 |
| 階建て | 2階建て |
| 駐車場 | 3台 |
| 土地権利 | 所有権 |
| 地 目 | 宅地 |
| 用途地域 | 無指定 |
| 建ぺい率 | 60% |
| 容積率 | 100% |
| 学校区 | 伊陸小/柳井中 |
| 現 況 | 空家 |
| 接道状況 | 南東側 6.80m(公道) |
| 交 通 | 岩徳線玖珂駅 徒歩99分/防長バス「久可地」バス停 停歩5分/車16分 |
| 取引態様 | 媒介 |
| 仲介手数料 | 330,000円 |
| 備 考 |
|---|
| 2月15日まで現況販売いたします。 2月16日以降は、リフォーム住宅として販売する予定です。 【おすすめポイント】 ・シロアリ防除工事施工後、5年間保証。 【設備等】 ・プロパンガス、井戸水、汲取りトイレ、瑕疵保証付(不動産会社独自)、庭、縁側、勝手口、浴室に窓 【備考】 ・給湯器は買主様ご負担での設置が必要です。 【周辺施設】 伊陸小学校:2000m(徒歩25分) セブンイレブン柳井伊陸店:750m マックスバリュ玖珂店:6400m 河郷診療所:5200m 柳井市役所 伊陸出張所:2100m 玖珂インターチェンジ:6000m |

